Wake up to the sound of waves & step from your lakeside deck into the crystal clear waters of Dorcas Bay, on Lake Huron. This is 4-season living at its most effortless. Set along one of the most cherished stretches of shoreline on the Bruce Peninsula, this 4 bedroom, 2 bathroom home offers a waterfront experience that feels peaceful & connected to nature. Mornings begin quietly at the water’s edge. Days unfold with swimming, paddling & time spent outdoors. Evenings settle into soft light & unforgettable sunsets across the bay. Inside, the home is bright, open & welcoming. The kitchen, dining & living spaces all orient toward the water, allowing the view to become part of daily life. The main floor offers 2 comfortable bedrooms & full bathroom, creating an easy & functional layout for generational living. Upstairs is where the home really opens up. The generously sized primary suite has wall-to-wall windows, offering incredible lake views & private balcony. There’s plenty of space to create a sitting area, making it feel like its own retreat. A 4th bedroom & large 5pc bathroom with jetted tub & separate shower completes the upper level. Outside, tiered decks lead toward the shoreline, creating spaces to gather & unwind. A 408sf bunkie provides exceptional additional sleeping space (currently sleeps 4, with a sitting area) or a quiet lakeside office, just steps from the water. Thoughtfully updated for year-round comfort, the home includes an updated propane furnace (2025), AC (2020), septic pump (2025) & UV system (2025), along with a spray foamed basement & backup generator for peace of mind in every season. In winter, the landscape becomes quiet, with snow, wildlife, & an ever-changing lake. With year-round road access, it remains easy to enjoy in every season. Just minutes from Tobermory & the Grotto, a place where summers linger, cozy winters feel calm & the rhythm of the lake becomes part of everyday life. A true piece of Canadiana, held right at the water’s edge (id:48169)
| MLS® Number | 40818679 |
| Property Type | Single Family |
| Equipment Type | Propane Tank |
| Features | Crushed Stone Driveway, Country Residential, Gazebo |
| Parking Space Total | 10 |
| Rental Equipment Type | Propane Tank |
| View Type | Lake View |
| Water Front Type | Waterfront |
| Bathroom Total | 2 |
| Bedrooms Above Ground | 4 |
| Bedrooms Total | 4 |
| Appliances | Dishwasher, Dryer, Microwave, Refrigerator, Washer |
| Architectural Style | 2 Level |
| Basement Development | Unfinished |
| Basement Type | Partial (unfinished) |
| Construction Style Attachment | Detached |
| Cooling Type | Central Air Conditioning |
| Exterior Finish | Vinyl Siding |
| Fireplace Fuel | Electric |
| Fireplace Present | Yes |
| Fireplace Total | 2 |
| Fireplace Type | Other - See Remarks,other - See Remarks |
| Heating Fuel | Propane |
| Heating Type | Forced Air |
| Stories Total | 2 |
| Size Interior | 2,078 Ft2 |
| Type | House |
| Utility Water | Drilled Well |
| Access Type | Water Access, Road Access |
| Acreage | No |
| Sewer | Septic System |
| Size Depth | 390 Ft |
| Size Frontage | 100 Ft |
| Size Irregular | 0.926 |
| Size Total | 0.926 Ac|1/2 - 1.99 Acres |
| Size Total Text | 0.926 Ac|1/2 - 1.99 Acres |
| Surface Water | Lake |
| Zoning Description | R2 |
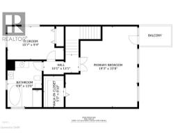
| Level | Type | Length | Width | Dimensions |
|---|---|---|---|---|
| Second Level | 5pc Bathroom | 13'0'' x 9'8'' | ||
| Second Level | Bedroom | 9'4'' x 15'7'' | ||
| Second Level | Primary Bedroom | 22'8'' x 19'3'' | ||
| Main Level | 3pc Bathroom | 8'4'' x 5'5'' | ||
| Main Level | Bedroom | 14'7'' x 9'7'' | ||
| Main Level | Bedroom | 7'7'' x 15'6'' | ||
| Main Level | Family Room | 11'3'' x 6'8'' | ||
| Main Level | Kitchen | 13'6'' x 11'5'' | ||
| Main Level | Dining Room | 8'11'' x 9'10'' | ||
| Main Level | Living Room | 13'6'' x 11'9'' |
https://www.realtor.ca/real-estate/29610522/1166-dorcas-bay-road-tobermory
Contact us for more information

Jessica Montague March
Salesperson
(519) 621-2000
(519) 740-6403

Lisa Hube
Salesperson
(519) 621-2000
(519) 740-6402